506 Charleston PlaceVilla Rica, GA 30180




Mortgage Calculator
Monthly Payment (Est.)
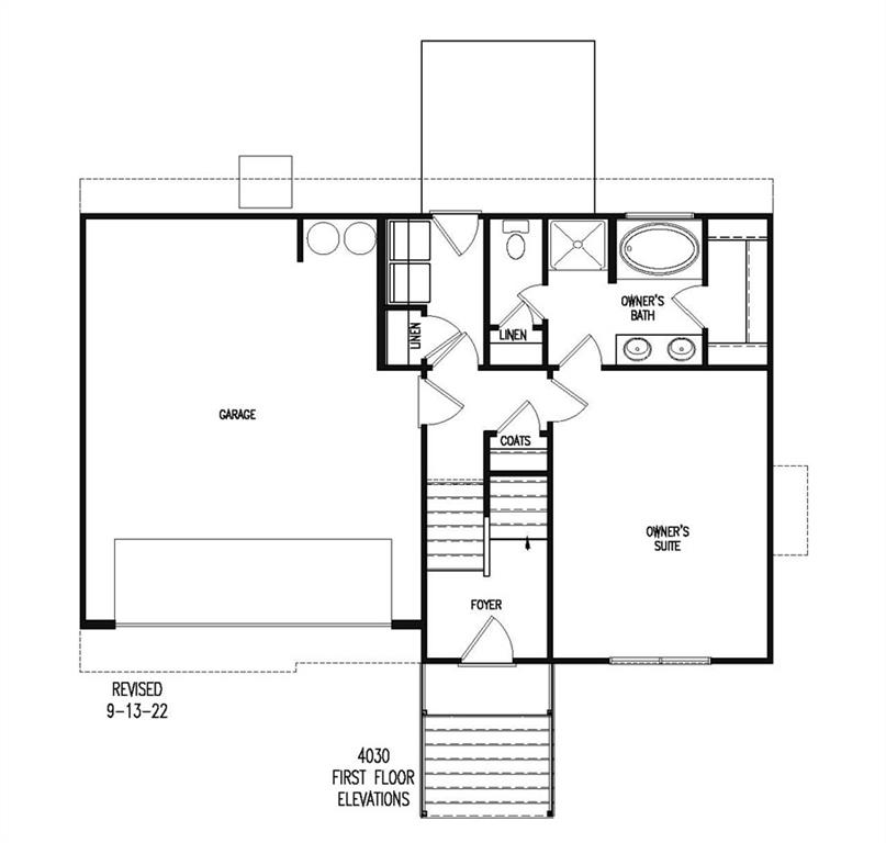
$1,466*Standing Inventory Special* - Builder will pay all closing cost and prepays with preferred lender! $500 Builder Deposit and more! Call for more information on this special! Move-in ready! The Easton Plan 4030 showcases a beautiful Craftsman-style exterior with a striking combination of stone and board-and-batten siding. This split-foyer home offers 4 bedrooms, 3 full bathrooms, a 2-car garage, smooth ceilings throughout, and 9' ceilings on the main level. The upper level features a spacious family room with a cozy fireplace, a dining area, and a large kitchen complete with granite countertops and stainless-steel appliances. You'll also find the first of two owner's suites with a full private bath, plus two additional bedrooms and a second full bathroom. The lower level includes the second generous owner's suite, highlighted by a dual-vanity bathroom with a garden tub, separate shower, and an oversized walk-in closet. Additional features include blinds, window screens, a glass shower door in the lower owner's suite, and a garage door opener. USDA eligible!
| 3 hours ago | Listing first seen on site | |
| 3 hours ago | Listing updated with changes from the MLS® |
Listings identified with the FMLS IDX logo come from FMLS and are held by brokerage firms other than the owner of this website and the listing brokerage is identified in any listing details. Information is deemed reliable but is not guaranteed. If you believe any FMLS listing contains material that infringes your copyrighted work, please click here to review our DMCA policy and learn how to submit a takedown request.
© 2017-2025 First Multiple Listing Service, Inc.
Did you know? You can invite friends and family to your search. They can join your search, rate and discuss listings with you.